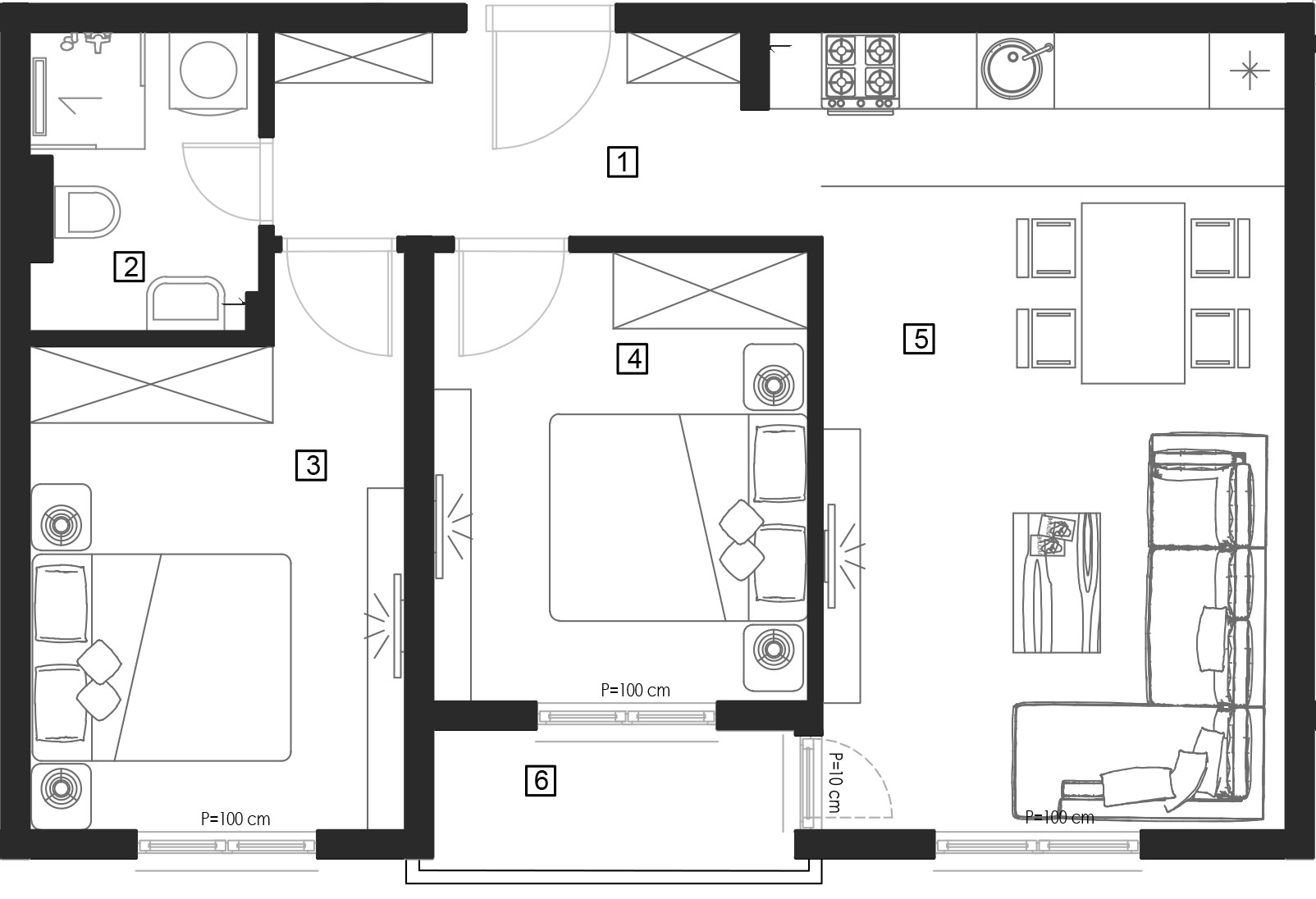
BR.15 TROSOBAN 55.86 m2
| broj | prostorija | kvadratura |
|---|---|---|
| 1 | Hodnik | 6.64 m2 |
| 2 | Kupatilo | 4.21 m2 |
| 3 | Spavaća soba | 11.86 m2 |
| 4 | Spavaća soba | 10.28 m2 |
| 5 | Dnevna, kuhinja i trpezarija | 22.57 m2 |
| 6 | Lođa | 2,63 m2 |
Ukupna kvadratura: 55.86 m2
Lamela: III lamela
Sprat: III sprat
Dostupnost: Dostupan
