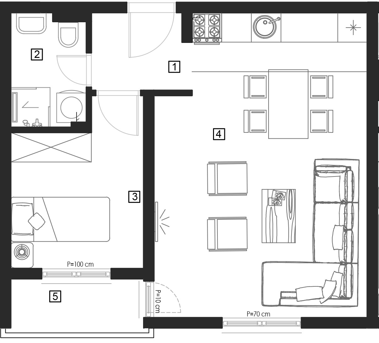
BR.14 DVOSOBAN 41.31 m2
| broj | prostorija | kvadratura |
|---|---|---|
| 1 | Hodnik | 3.30 m2 |
| 2 | Kupatilo | 3.50 m2 |
| 3 | Spavaća soba | 8.35 m2 |
| 4 | Dnevna, kuhinja i trpezarija | 25.51 m2 |
| 5 | Lođa | 2.50 m2 |
Ukupna kvadratura: 41.31 m2
Lamela: III lamela
Sprat: IV sprat
Dostupnost: Prodat
| broj | prostorija | kvadratura |
|---|---|---|
| 1 | Hodnik | 3.30 m2 |
| 2 | Kupatilo | 3.50 m2 |
| 3 | Spavaća soba | 8.35 m2 |
| 4 | Dnevna, kuhinja i trpezarija | 25.51 m2 |
| 5 | Lođa | 2.50 m2 |
Ukupna kvadratura: 41.31 m2
Lamela: III lamela
Sprat: IV sprat
Dostupnost: Prodat