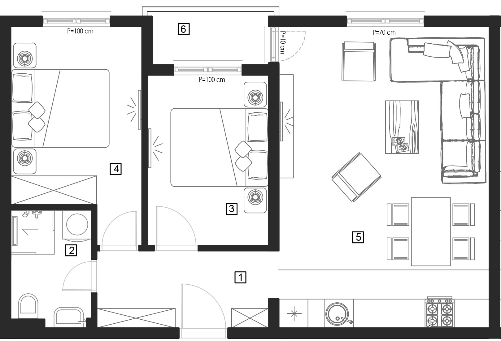
BR.8 TROSOBAN 56.38 m2
| broj | prostorija | kvadratura |
|---|---|---|
| 1 | Hodnik | 5.83 m2 |
| 2 | Kupatilo | 3.97 m2 |
| 3 | Spavaća soba | 8.85 m2 |
| 4 | Spavaća soba | 10.76 m2 |
| 5 | Dnevna, kuhinja i trpezarija | 27.01 m2 |
| 6 | Lođa | 2.22 m2 |
Ukupna kvadratura: 56.38 m2
Lamela: III lamela
Sprat: II sprat
Dostupnost: Prodat
