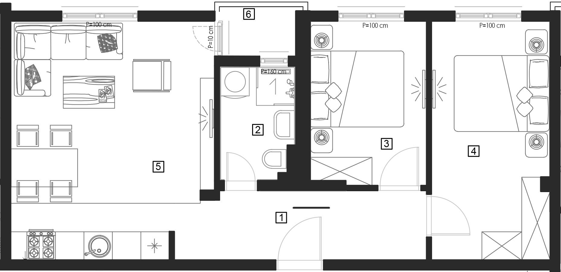
BR.4 TROSOBAN 50.56 m2
| broj | prostorija | kvadratura |
|---|---|---|
| 1 | Hodnik | 7.77 m2 |
| 2 | Kupatilo | 3.87 m2 |
| 3 | Spavaća soba | 8.51 m2 |
| 4 | Spavaća soba | 12.63 m2 |
| 5 | Dnevna, kuhinja i trpezarija | 20.47 m2 |
| 6 | Lođa | 1.29 m2 |
Ukupna kvadratura: 50.56 m2
Lamela: III lamela
Sprat: V sprat
Dostupnost: Dostupan
