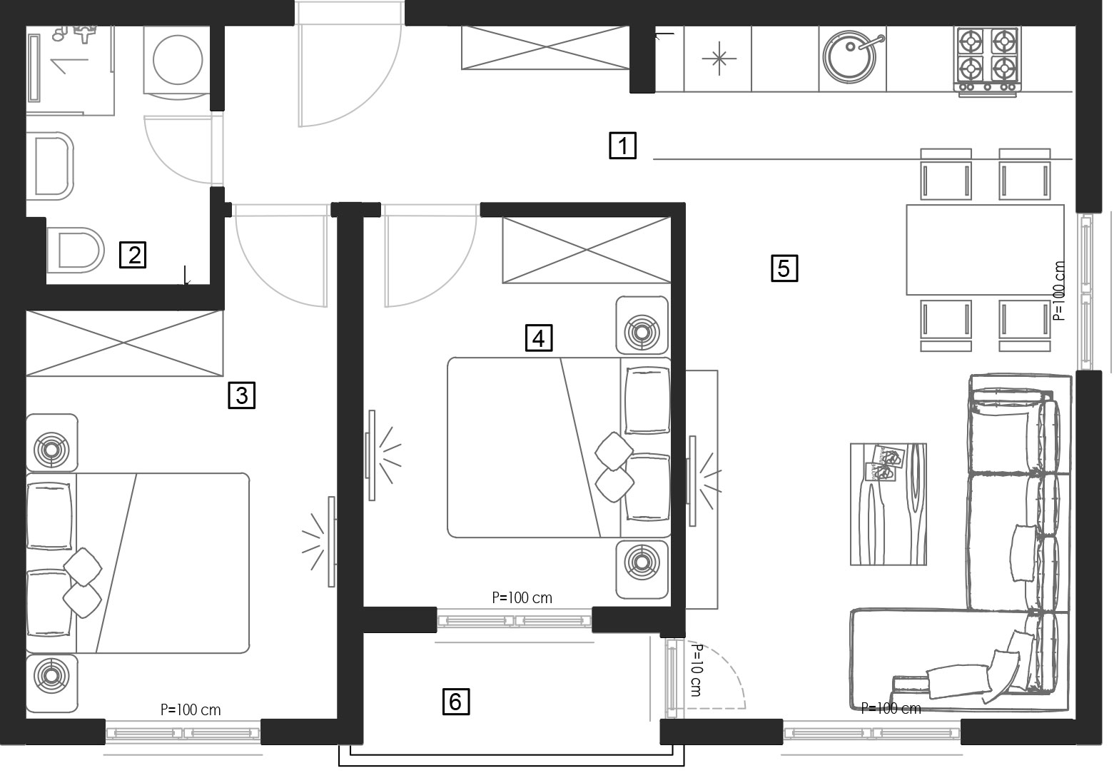
BR.2 TROSOBAN 53.45 m2
| broj | prostorija | kvadratura |
|---|---|---|
| 1 | Hodnik | 6.22 m2 |
| 2 | Kupatilo | 3.85 m2 |
| 3 | Spavaća soba | 11.21 m2 |
| 4 | Spavaća soba | 9.77 m2 |
| 5 | Dnevna, kuhinja i trpezarija | 22.14 m2 |
| 6 | Lođa | 2.49 |
Ukupna kvadratura: 53.45 m2
Lamela: III lamela
Sprat: VIII sprat
Dostupnost: Dostupan
