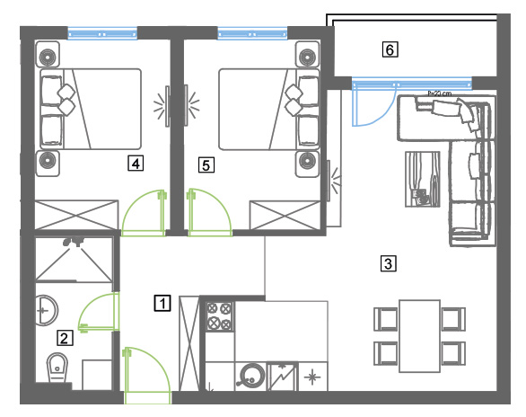
BR.26 TROSOBAN 59.97 m2
| broj | prostorija | kvadratura |
|---|---|---|
| 1 | hodnik | 6.76 m2 |
| 2 | kupatilo | 4.93 m2 |
| 3 | Dnevna sa kuhinjom i trpezarijom | 26.39 m2 |
| 4 | soba | 10.43 m2 |
| 5 | soba | 10.47 m2 |
| 6 | lođa | 3.69 m2 |
Ukupna kvadratura: 59.97 m2
Lamela: II lamela
Sprat: IV sprat
Dostupnost: Prodat
