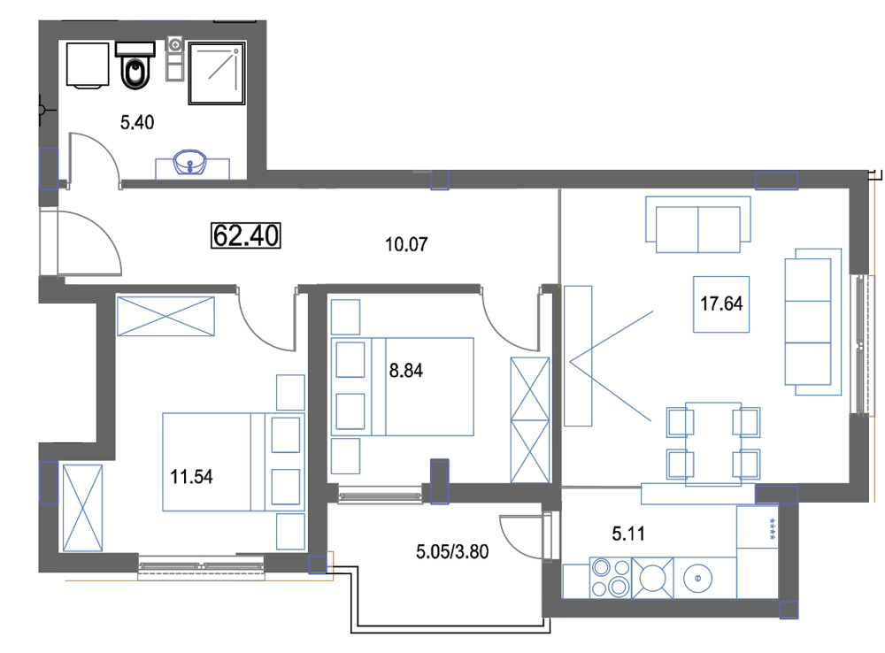
BR.2 TROSOBAN 62.40 m2
| broj | prostorija | kvadratura |
|---|---|---|
| 1 | hodnik | 10.07 m2 |
| 2 | dnevni boravak | 17.64 m2 |
| 3 | kuhinja | 5.11 m2 |
| 4 | kupatilo | 5.40 m2 |
| 5 | soba | 11.54 m2 |
| 6 | soba | 8.84 m2 |
| 7 | lođa (5.05x75%) | 3.80 m2 |
Ukupna kvadratura: 62.40 m2
Lamela: I lamela
Sprat: III sprat
Dostupnost: Prodat
