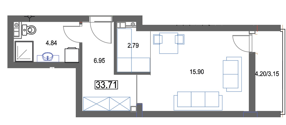
BR.1 JEDNOSOBAN 33.71 m2
| broj | prostorija | kvadratura |
|---|---|---|
| 1 | hodnik | 6.95 m2 |
| 2 | dnevni boravak | 15.90 m2 |
| 3 | kuhinja | 2.79 m2 |
| 4 | kupatilo | 4.84 m2 |
| 5 | lođa (4.20x75%) | 3.15 m2 |
Ukupna kvadratura: 33.71 m2
Lamela: I lamela
Sprat: III sprat
Dostupnost: Prodat
| broj | prostorija | kvadratura |
|---|---|---|
| 1 | hodnik | 6.95 m2 |
| 2 | dnevni boravak | 15.90 m2 |
| 3 | kuhinja | 2.79 m2 |
| 4 | kupatilo | 4.84 m2 |
| 5 | lođa (4.20x75%) | 3.15 m2 |
Ukupna kvadratura: 33.71 m2
Lamela: I lamela
Sprat: III sprat
Dostupnost: Prodat