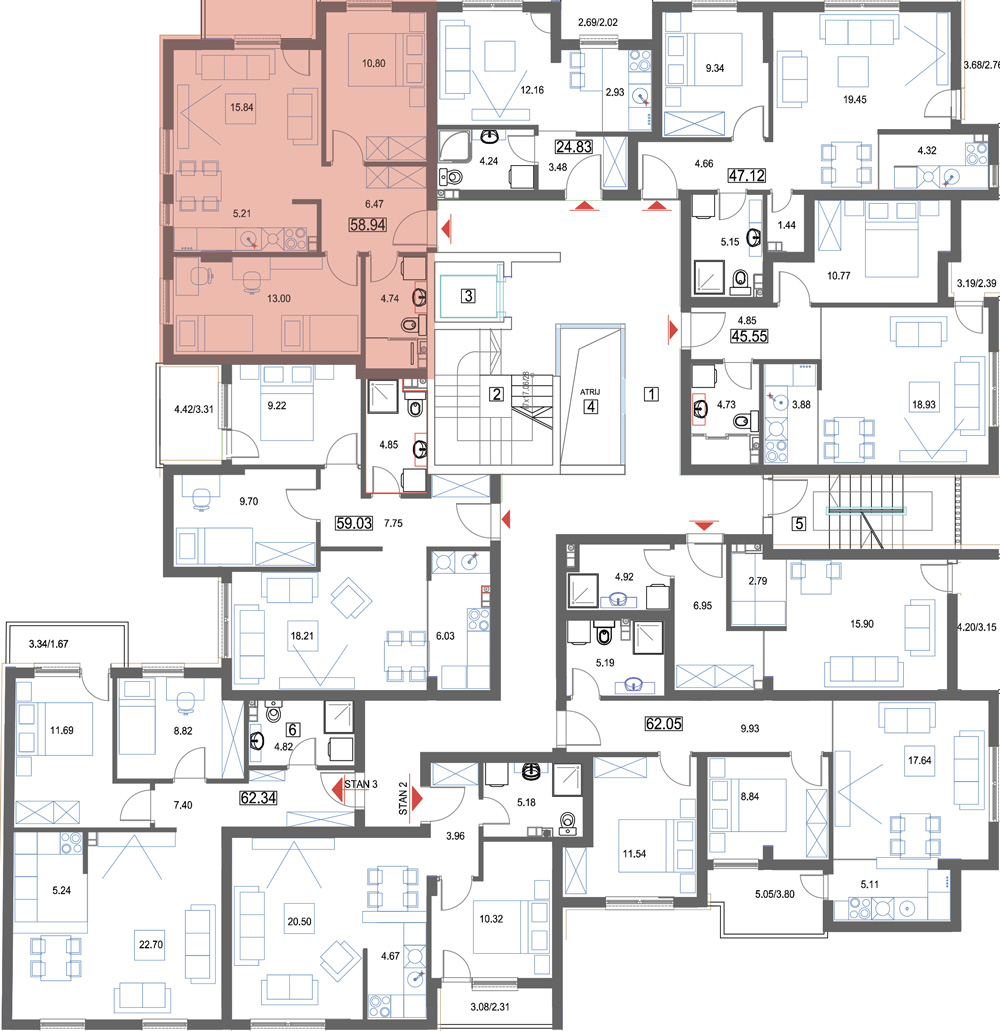
BR.6 TROSOBAN 58.94 m2
| broj | prostorija | kvadratura |
|---|---|---|
| 1 | hodnik | 6.47 m2 |
| 2 | dnevni boravak | 15.84 m2 |
| 3 | kuhinja | 5.21 m2 |
| 4 | kupatilo | 4.74 m2 |
| 5 | soba | 13.00 m2 |
| 6 | soba | 10.80 m2 |
| 7 | lođa (3.84x75%) | 2.88 m2 |
Ukupna kvadratura: 58.94 m2
Lamela: I lamela
Sprat: IV sprat
Dostupnost: Prodat
