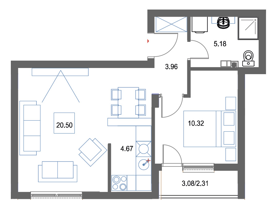
BR.3 DVOSOBAN 46.94 m2
| broj | prostorija | kvadratura |
|---|---|---|
| 1 | hodnik | 3.96 m2 |
| 2 | dnevni boravak | 20.50 m2 |
| 3 | kuhinja | 4.67 m2 |
| 4 | kupatilo | 5.18 m2 |
| 5 | soba | 10.32 m2 |
| 6 | lođa (3.08x75%) | 2.31 m2 |
Ukupna kvadratura: 46.94 m2
Lamela: I lamela
Sprat: IV sprat
Dostupnost: Prodat
