Promenada blok 3

Stan Broj: 8 3 sobe 56.38 m2

  • Home
  • Detalji plana

Osnovne informacije

  • Status: Prodat
  • Struktura: 3 sobe
  • Kvadratura: 56.38 m²
  • Sprat: V Sprat
  • Lamela: III Lamela

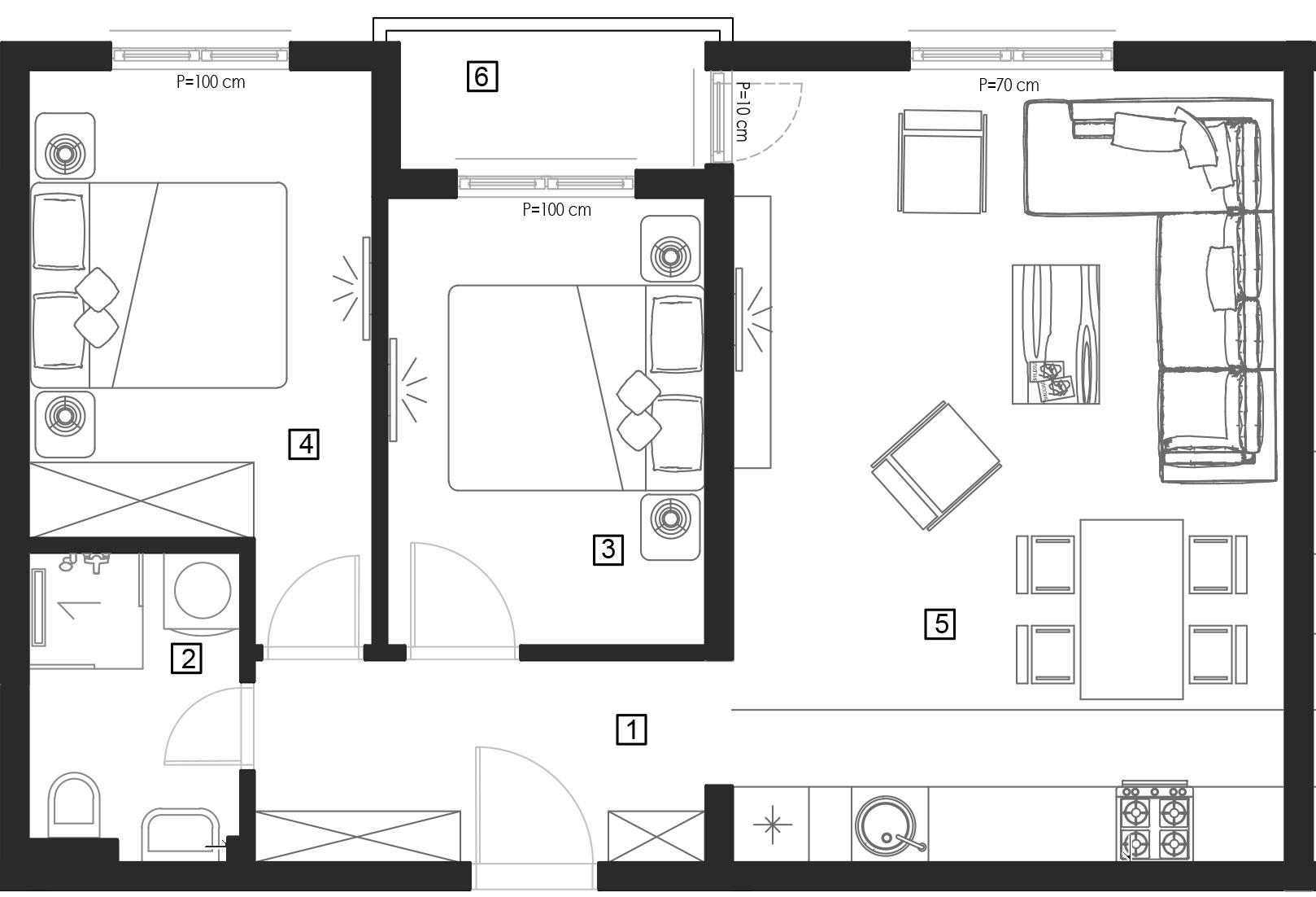
Struktura prostorija

# Prostorija m2
1 Hodnik 5.83
2 Kupatilo 3.97
3 Spavaća Soba 8.85
4 Spavaća Soba 10.76
5 Dnevna kuhinja i trpezarija 27.01
6 Lođa 2.22

Ukupna kvadratura

56.38

Trenutni status

Prodat

Dodatne pogodnosti

  • Lift
  • Parking
  • Centralno grijanje
  • Podzemna garaža
  • Toplotna Pumpa
Lokacija objekta Promenada blok 3, Kanal Dašnica Bijeljina
Podijeli:

Kontakt

Za sva pitanja smo tu Vama na raspolaganju

O nama

Mihajlović invest doo je kompanija osnovana 2017.godine u gradu Bijeljina sa ciljem da razvije moderan koncept stanovanja uz primjenu najviših standarda u projektovanju i gradnji.

© Mihajlović Invest. Sva prava zadržana.