Promenada blok 4

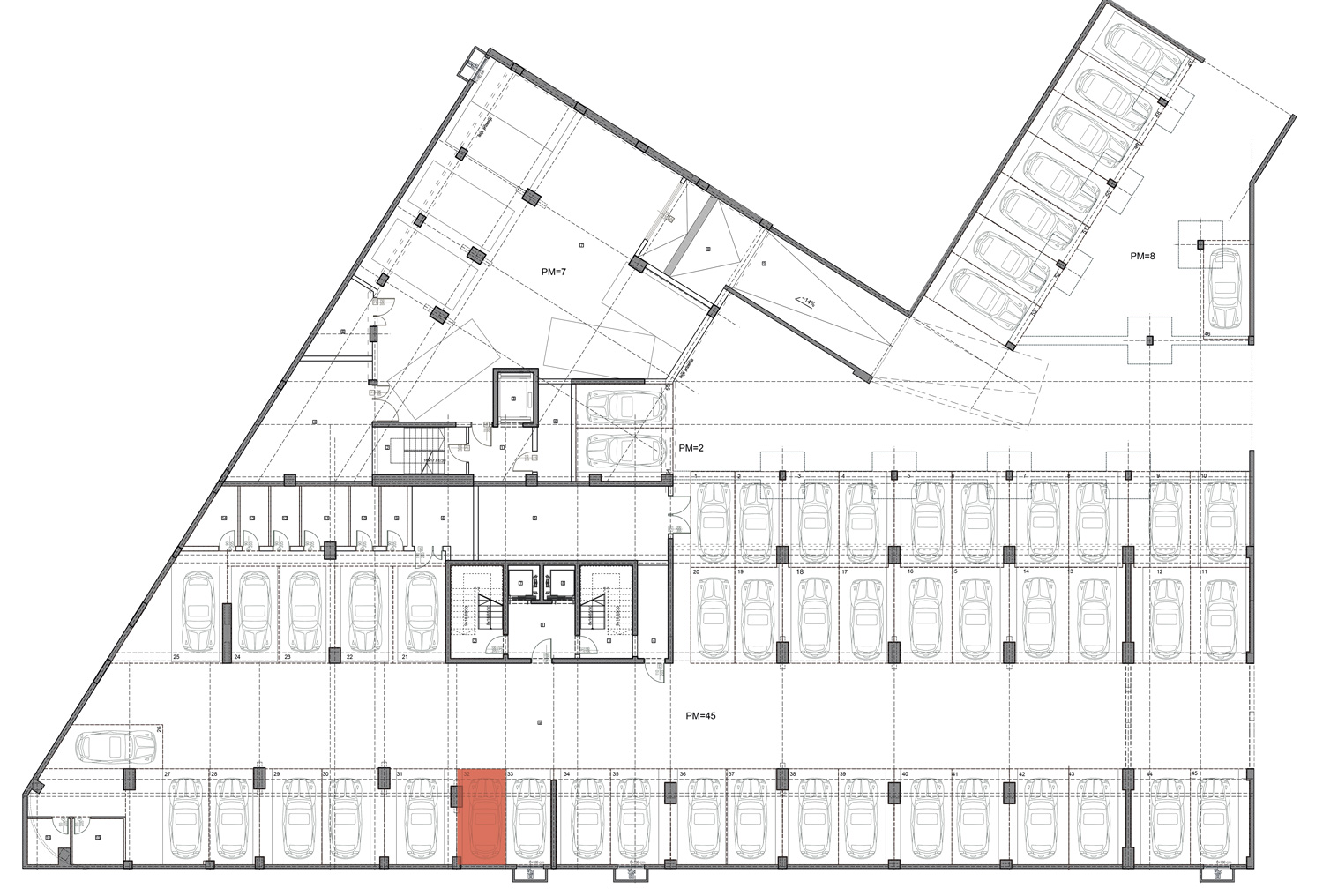
Stan Broj: 32 Parking Mjesto 12.35 m2

  • Home
  • Detalji plana

Osnovne informacije

  • Status: Slobodan
  • Struktura: Parking Mjesto
  • Kvadratura: 12.35 m²
  • Sprat: Garaža
  • Lamela: IV Lamela

Struktura prostorija

# Prostorija m2
1 Parking Mjesto 12.35

Ukupna kvadratura

12.35

Trenutni status

Slobodan

Dodatne pogodnosti

  • Podzemna garaža
Lokacija objekta Promenada blok 4, Kanal Dašnica Bijeljina
Podijeli:

Kontakt

Za sva pitanja smo tu Vama na raspolaganju

O nama

Mihajlović invest doo je kompanija osnovana 2017.godine u gradu Bijeljina sa ciljem da razvije moderan koncept stanovanja uz primjenu najviših standarda u projektovanju i gradnji.

© Mihajlović Invest. Sva prava zadržana.