Promenada blok 4

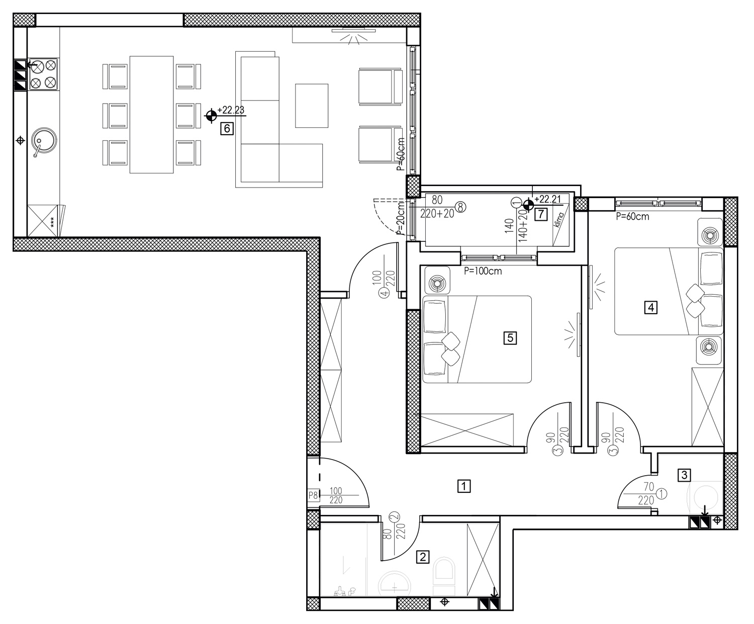
Stan Broj: 13 3 sobe 67.63 m2

  • Home
  • Detalji plana

Osnovne informacije

  • Status: Slobodan
  • Struktura: 3 sobe
  • Kvadratura: 67.63 m²
  • Sprat: VII Sprat
  • Lamela: IV Lamela

Struktura prostorija

# Prostorija m2
1 Hodnik 11.81
2 Kupatilo 4.67
3 Vešeraj 1.49
4 Spavaća Soba 10.96
5 Spavaća Soba 9.98
6 Dnevna kuhinja i trpezarija 28.77
7 Lođa 2.64

Ukupna kvadratura

67.63

Trenutni status

Slobodan

Dodatne pogodnosti

  • Lift
  • Parking
  • Centralno grijanje
  • Podzemna garaža
  • Toplotna Pumpa
Lokacija objekta Promenada blok 4, Kanal Dašnica Bijeljina
Podijeli:

Kontakt

Za sva pitanja smo tu Vama na raspolaganju

O nama

Mihajlović invest doo je kompanija osnovana 2017.godine u gradu Bijeljina sa ciljem da razvije moderan koncept stanovanja uz primjenu najviših standarda u projektovanju i gradnji.

© Mihajlović Invest. Sva prava zadržana.