Promenada blok 4

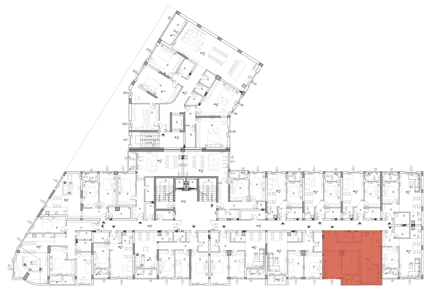
Stan Broj: 8 3 sobe 62.61 m2

  • Home
  • Detalji plana

Osnovne informacije

  • Status: Slobodan
  • Struktura: 3 sobe
  • Kvadratura: 62.61 m²
  • Sprat: III Sprat
  • Lamela: IV Lamela

Struktura prostorija

# Prostorija m2
1 Hodnik 10.22
2 Kupatilo 4.20
3 Spavaća Soba 11.33
4 Spavaća Soba 9.57
5 Dnevna soba sa trpezarijom 19.90
6 Kuhinja 5.01
7 Ostava 1.89
8 Lođa 3.14

Ukupna kvadratura

62.61

Trenutni status

Slobodan

Dodatne pogodnosti

  • Lift
  • Parking
  • Centralno grijanje
  • Podzemna garaža
  • Toplotna Pumpa
Lokacija objekta Promenada blok 4, Kanal Dašnica Bijeljina
Podijeli:

Kontakt

Za sva pitanja smo tu Vama na raspolaganju

O nama

Mihajlović invest doo je kompanija osnovana 2017.godine u gradu Bijeljina sa ciljem da razvije moderan koncept stanovanja uz primjenu najviših standarda u projektovanju i gradnji.

© Mihajlović Invest. Sva prava zadržana.